Leasing Complete: Striking Class A Office in Park Setting - Westchase District

FERGUSON + FBRE completed the lease-up of 6051 N. Course, a premier office building within Westchse District. Kelly Ferguson previously represented Smart Financial Credit Union in the acquisition of the property for the reestablishment of their headquarter office. Smart Financial subsequently retained Kelly to handle the leasing of the excess office spaace within the building. Utilizing a global marketing platform and local expertise and representation, Kelly was able to complete the full lease-up of the property within one of the most challenging office markets in history.

A Modern Westchase Gem

  • Oak Park Plaza is located just off Beltway 8 in the Oak Park at Westchase District.

  • The property is a 52,907 SF, LEED-certified class A office building with surface parking and an exceptional interior ambiance, with lovely finishes and ample natural light throughout.

  • Oak Park Plaza offers beauty and convenience, coupling a serene setting and expansive outdoor views with easy access to Beltway 8, Rogerdale, Bellaire, Harwin and Westpark Tollway.

  • Property enjoys work and lifestyle amenities of the Westchase District and is only steps away from miles of parks and interconnected trail systems.

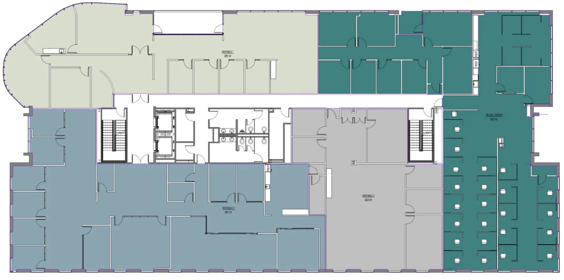
Flexible Sizing & Layout Options on Top Floor, 3287 to 8088 SF

BROCHURE

CONTACT:

Kelly Ferguson, CCIM

kelly@fergusonrec.com

M: 281.7346434